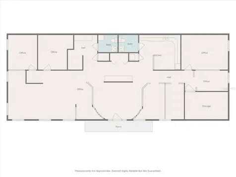
Exceptional Development Opportunity - Five Lots on Roosevelt Boulevard! Seize this rare opportunity to acquire nearly ¾ acre of prime, high-visibility real estate along one of Largo's most active corridors. According to the City of Largo, approximately 0.56 acres of the 0.74-acre site may support up to 28 residential units with applicable bonus density options, including incentives for affordable housing, green building, and greywater system integration. This unique assemblage includes three parcels totaling five lots, prominently positioned at the corner of Roosevelt Boulevard and 59th Street N. Two parcels lie within the City of Largo, while the westernmost lot is located in unincorporated Pinellas County-offering flexible development potential. The property currently features a 2,340 sq. ft. office building, a vacant lot, and an 800 sq. ft. cabin presently used as a residence. Current zoning is Residential/Office Limited (R/O-L), allowing a variety of uses including office, residential, or mixed-use redevelopment. Strategically located next to Walgreens and across from the new 7-Eleven, this site offers exceptional exposure and accessibility. It's minutes from St. Pete-Clearwater International Airport, with convenient access to Tampa International Airport, I-275, US Highway 19, and just 20 minutes from the Gulf beaches. Don't miss this outstanding opportunity to develop or invest in one of Largo's most desirable and high-traffic commercial corridors.
Listed by Kelly Montgomery-Kepler of ENGEL & VOLKERS BELLEAIR (727-461-1000)

Listing Tools

Property Details of 2965 Roosevelt Boulevard

Property Details

Exterior Features

Community

Map Location

Listings courtesy of StellarMLS as distributed by MLS GRID. Based on information submitted to the MLS GRID as of March 9, 2026 8:34 AM EDT. All data is obtained from various sources and may not have been verified by broker or MLS GRID. Supplied Open House Information is subject to change without notice. All information should be independently reviewed and verified for accuracy. Properties may or may not be listed by the office/agent presenting the information. IDX information is provided exclusively for consumers’ personal noncommercial use and may not be used for any purpose other than to identify prospective properties consumers may be interested in purchasing. The data is deemed reliable but is not guaranteed by MLS GRID. The use of the MLS GRID Data may be subject to an end user license agreement.

Hi there! How can we help you?

Contact us using the form below or give us a call.

Send Us A Message:

I agree to receive marketing and customer service calls and text messages from Aaron Bosshardt. To opt out, you can reply 'stop' at any time or click the unsubscribe link in the emails. Consent is not a condition of purchase. Msg/data rates may apply. Msg frequency varies. Privacy Policy.

Do not fill in this field:

This site is protected by reCAPTCHA and the Google Privacy Policy and Terms of Service apply.

Hi there! How can we help you?

Contact us using the form below or give us a call.

Send Us A Message:

Do not fill in this field:

This site is protected by reCAPTCHA and the Google Privacy Policy and Terms of Service apply.

Hi there! How can we help you?

Contact us using the form below or give us a call.

Send Us A Message:

Do not fill in this field:

This site is protected by reCAPTCHA and the Google Privacy Policy and Terms of Service apply.

Do not fill in this field:

This site is protected by reCAPTCHA and the Google Privacy Policy and Terms of Service apply.

Do not fill in this field:

This site is protected by reCAPTCHA and the Google Privacy Policy and Terms of Service apply.

Do not fill in this field:

This site is protected by reCAPTCHA and the Google Privacy Policy and Terms of Service apply.

$

Do not fill in this field:

This site is protected by reCAPTCHA and the Google Privacy Policy and Terms of Service apply.